Client: National Museum of Nis
Architect: Riste Dobrijević, Milena Zindović, Ljiljana Čavić
Year: 2020
Location: Niš, Serbia
Status: competition

Архитектонски концепт
Локација за изградњу нове зграде музеја налази се на углу улица Јеронимове и Орловића Павла, на КП бр.533 КО Ниш-Бубањ, у обухвату Плана генералне регулације подручја Градске општине Медијана. Према важећем ПГР-у, на овој локацији предвиђена је изградња објекта висине П+6, односно 27м, са заузетошћу 70%.
Парцела се налази у суседству објекта Официрског дома, који се активно користи у манифестационе сврхе, као и прекопута парка Седми јули, на обали Нишаве. Централна градска локација адекватна је за функцију објекта Народног музеја, али програм захтеван пројектним задатком и важећи урбанистички услови поставили су изазов уклапања објекта значајних габарита у уситњену градску урбанистичку матрицу.
Пројектом је предвиђено уклањање свих постојећих објеката са парцеле, осим заштићеног објекта зграде епископа Јеронима, који постаје део Музејског објекта. Предвиђена је и изградња подземне етаже са галеријом испод целе парцеле, а за потребе смештања захтевног музејског програма. Угаона диспозиција постојећег заштићеног објекта и суседног објекта Официрског дома, и потреба њиховог функционалног повезивања довели су до постављања надземног дела новог објекта Музеја на регулациону линију улице Орловића Павла. Концептуално, нови објекат се „утискује“ у густу уситњену матрицу суседних и постојећих објеката, те се наметнула издужена форма као најприхватљивија са функционалног, естетског и конструктивног аспекта.
Посматрајући односе постојећих и суседних објеката, захтевани габарит новог објекта, и укупну диспозицију блока, наметнуло се постављање линијске форме објекта у дубину парцеле и отварање полу-атријума према улици Јеронимовој, са јужне стране парцеле. На овај начин висока форма, која ће свакако доминирати околином гледано из далека, није у првом плану када се посматра улични низ из Улице Јеронимове. Такође, оваква диспозиција музејског тракта омогућава формирање платоа, који осим за приступ запослених и транспорт дела, служи и као одмориште посетиоцима музеја.
Са друге стране, из парка Седмог јула, отворени простор омогућава сагледавање комплетне висине објекта. Услед мале ширине овог фронта (укупно 7,7м са фасадном облогом) и висине од 27м, објекат се сагледава не као тракт, већ као кула у односу на суседне објекте. Како би се спречило „гушење“ постојећег заштићеног објекта зграде епископа Јеронима, нови објекат Музеја одмакнут је и повезан је стакленим „превезом“, који прати форму косог крова заштићеног објекта. Овај стаклени „превез“ између старог и новог заправо је и главни улаз у објекат, и омогућава улаз и из улице Орловића Павла и из атријума са друге стране.
Високи тракт музеја обликован је контрастно у односу са на постојећу архитектуру на локацији, у духу савремене архитектуре и водећи рачуна о потреби да се велика форма што је могуће више визуелно олакша. Једноставна спољна обрада фасаде, без истакнутих хоризонталних подела, омогућава сагледавање тракта Музеја и као „платна“ или позадине за истицање постојеће заштићене архитектуре.
Специфична спољна обрада стаклене фасаде, са „завесом“ од вертикалних цеви различитих пречника и постављених на различитим размацима и у више планова, даје посебну динамику једноставној форми тракта, и ублажава оштре ивице савремене куће, док у исто време омогућава сагледавање њене транспарентности и визуелно не отежава волумен. Архитектонски језик „цеви“ инспирисан је непосредном близином парка – музеју се приступа кроз стабла у парку, а потом и шуму од цеви.
Транспарентна фасада визуелно повезује спољашње просторе парка и платоа, на коме је такође предвиђено озелењавање, са унутрашњим простором улазног хола. Повезаност јавног простора музеја са јавним простором парка могуће је остварити и у функционалном смислу – коришћењем улазног платоа музеја и парка као простора за изложбе на отвореном.
Улазни плато испред музеја налази се на коти приступа музеју, која је 1,1м нижа од приступног платоа Официрског дома. Решење предвиђа измештање степеништа које их повезује ближе Официрском дому, и савлађивање висинске разлике благом рампом у простору парка. Овим решењем, простор испред самог улаза и фасаде новог објекта Музеја остају јединствени плато, на које је могуће прикупљање и већег броја посетилаца.
Колски саобраћај зауставља се на самом углу улица Јеронимове и Орловића Павла, и није дозвољен колски приступ на плато, осим интервенцијским возилима. Предвиђено је ново поплочање улазног платоа, као и атрујмског платоа са друге стране објекта Музеја. Дизајн поплочања у две боје инспирисан је вертикалама на фасади новог објекта Музеја, са смером линија који одговара правцу сенке коју би бацала „шума“ фасадних цеви 1. априла у 11 сати, дана када је основан Народни музеј у Нишу. Овако формиран дизајн поплочања предвиђен је и на степеницама које воде до платоа Официрског дома, као и на делу платоа испред Официрског дома, чиме се они и визуелно повезују.
Диспозиција вертикалних елемената на фасади, осим за потребе динамичности фасаде, формирана је и оријентацијом објекта – цеви су гушће постављене на јужној него на северној страни објекта. Ова „завеса“, осим од сунца, штити вертикалне стаклене површине и од ветра, а цилиндрични профил цеви без оштрих ивица умекшава сенке и целокупну форму музејског тракта. „Шума“ цеви на фасади у унутрашњим просторима ствара и динамичне сенке које креирају занимљив и атрактиван ентеријерски просторза посетиоце.
Хоризонтална подела на фасади је ипак присутна– прва и друга етажа објекта, које су намењене изложбеном простору, затворене су зидом у боји, који представља једину „пуну“ форму иза динамичне „завесе“. Висине хоризонтала повезане су са висинама суседних објеката, чиме се остварује визуелна повезаност новог и постојећих објеката.
Фронт улице Јеронимове употпуњен је постављањем и трећег објекта на парцели, који се налази на месту старог објекта, на регулационој линији Јеронимове улице. Иако постојећи објекат није сачуван из функционалних разлога, нови објекат пројектован је као савремена интерпретација историјске архитектуре. Висина је одређена контекстом, а фасада је обрађена на исти начин као зграда епископа Јеронима, са минималном пластиком. Распоред и димензије отвора реминесценција су на претходни објекат који се налазио на овом месту. Оштра ивица равног крова „умекшана“ је зеленилом које је предвиђено на кровној тераси. И овај објекат је са главним објектом повезан стакленим превезом, у коме је смештен улаз за запослене. Оваквом интерпретацијом сачувана је целовитост уличног фронта Јевремове улице, и атмосфера овог краја града. Нови,стаклени тракт сагледава се са позиција дистанци – из парка, са Тврђаве или других градских видиковаца. Његова специфична фасада чини да објекат делује као динамична, лагана, позадина историјским фасадама, а да се не умањује његов потенцијал да постане препознатљиви урбани репер у центру града.
Функционална организација простора
Функција целокупног објекта подељена је у четири функционалне целине:
А –Простори намењени посетиоцима музеја
Б – Изложбени простори
В – Простори намењени активностима запослених
Г – Депои за предмете
Простори намењени посетиоцима музеја подразумевају просторе који су јавни, односно доступни свим посетиоцима, али нису изложбени. То су улазни холови, комуникације, гардероба, сувенирница, кафе, тоалети за посетиоце и сл. Ови простори смештени су на подрумској етажи, у приземљу и на трећем спрату. Приземље постојећег објекта зграде епископа Јеронима углавном је искоришћену у ту сврху, и ту су смештене гардероба, сувенирница и један од музејских улаза. Разлика у нивоима приземља зграде епископа Јеронима и новог музејског објекта савладана је степеништем, као и платформом за инвалидска колица.
Изложбени простори обухватају просторе за повремене и сталну поставку музеја. Пројектом је предвиђено укупно око 800 м2 искључиво изложбеног простора, који су смештени у подрумској етажи, на првом и другом спрату. На првој етажи изложбени простор у новом објекту повезан је директно са изложбеним простором смештеним у поткровној етажи зграде епископа Јеронима. Пројектовани изложбени простори различитих су димензија, конфигурација и висина, како би се прилагодили различитим захтевима разнородне колекције Музеја. Посетиоцима Музеја на располагању су степеништа и лифт за посетиоце смештен у комуникационом језгру.
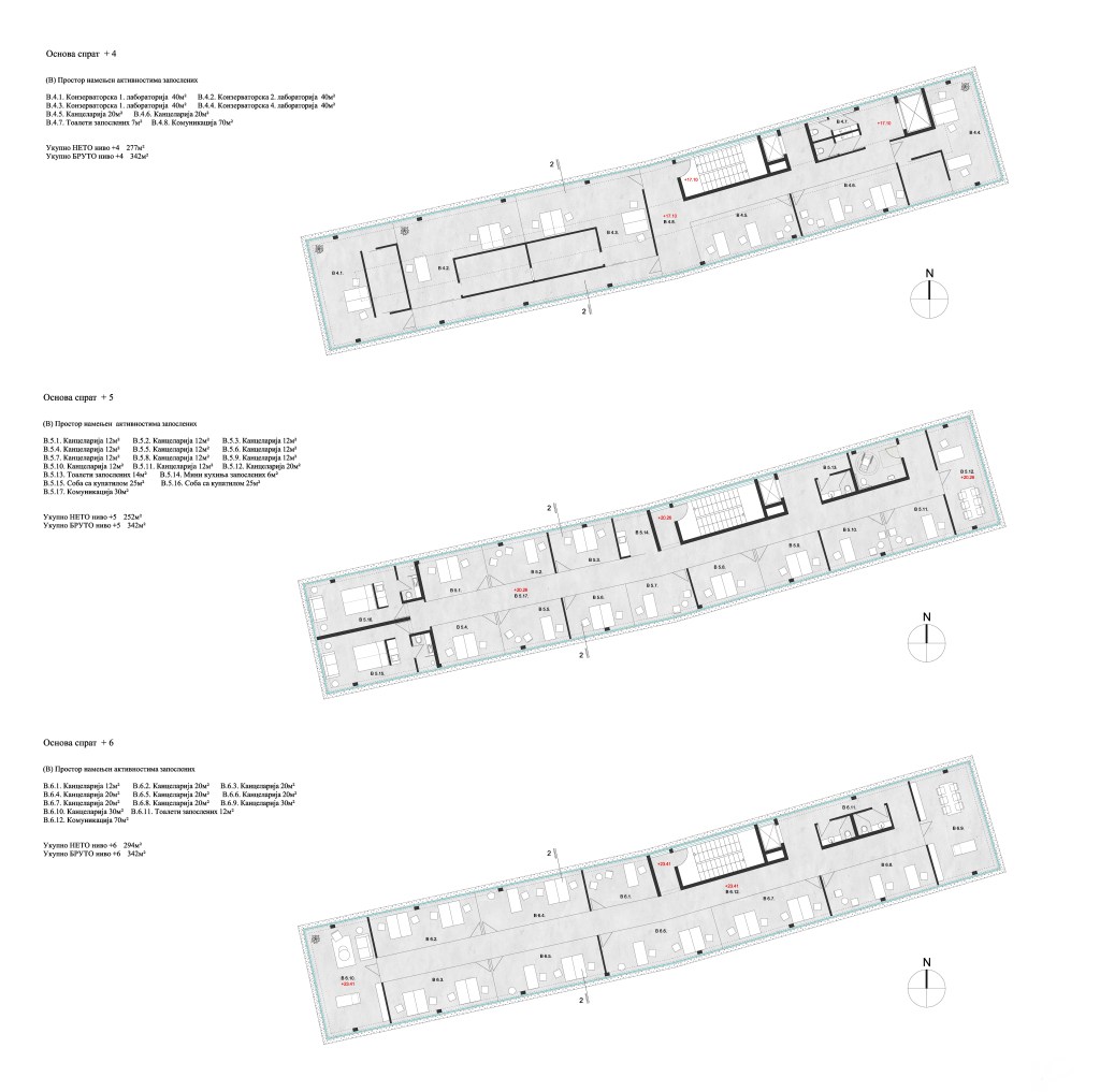
Простори намењени активностима запослених подразумевају како просторе за манипулацију делима, тако и библиотеку, конзерваторске лабораторије, канцеларијски простор музеја и друге садржаје према пројектном задатку. У приземљу и на првом спрату смештене су просторије везане за пријем и манипулацију предметима и делима, као и библиотека. На тај начин омогућава се и једноставна комуникација са просторима депоа, смештеним у подземним етажама.
Депои за предмете смештени су у подземној етажи (Етнологија и Антика) са галеријом на којој су смештени Епиграфика, Историја уметности, Праисторија, Историја, Средњи век и Нумизматика. Књижевна заоставштина је на галерији приземља која је искључиво намењена запосленима који се крећу у делу објекта у дубини блока. У задњем делу објекта предвиђен је и теретни лифт. Главни улаз за дела решен је у истој зони објекта у којој се крећу запослени, са дворишне стране, са увученим простором за надстрешницу и пријем дела.
На вишим етажама објекта, од четврте до шесте, смештене су конзерваторске лабораторије и канцеларијски простори са својим пратећим функцијама. Све просторије за активности запослених повезане су вертикалним комуникацијама, смештеним у део објекта у дубини блока. Улазу за запослене приступа се са платоа из Јеронимове улице, где се налази и колски приступ за истовар и утовар музејске колекције.
Главни улаз за посетиоце оријентисан је према парку Седмог јула, и постављен је у стаклени превез између новог и старог објекта. Оваква оријентација улаза логична је са становишта повезивања са центром Ниша, и другим важним споменицима и атракцијама у граду – попут Тврђаве, официрског дома, пешачке зоне, речног кеја, итд. Улази за посетиоце постоје и кроз објекат зграде епископа Јеронима, као и са платоа у Јеронимовој улици.
Објекат музеја могуће је функционално повезати са просторима Официрског дома, и то из простора главног улазног хола у приземљу објекта, као и из изложбеног простора за привремене поставке у приземљу објекта.
Концепција конструктивног склопа
Конструкција надземних етажа новог објекта је армирано-бетонска скелетна, са армирано-бетонским језгром смештеним на задњу границу парцеле. Бочно смештање језгра неопходно је како би се омогућило максимално искоришћење етажа у уском тракту новог објекта. У језгру су смештени лифт за посетиоце са предпростором, противпожарно степениште и лифт за запослене.
Подземна етажа укопава се 6.5 м од коте терена, и њени бетонски зидови прихватају скелетну конструкцију новог објекта, као и зидове постојећег заштићеног објекта. Обзиром на близину реке, предвиђени су дупли бетонски зидови ради адекватне хидроизолације подземних етажа у којима су смештени музејски депои.
Међуспратне конструкције су армирано бетонске, а стубови правоугаоног облика димензија према статичком прорачуну. Стубови и плоче су увучени у односу на полу-структуралну зид-завесу. Цеви које чине фасадну облогу причвршћене су за конструкцију у зонама међуспратних плоча.
Примењени материјали спољашње и унутрашње обраде
Фасада новог Музејског објекта конципирана је као вентилисана фасада, са полуструктуралном зид завесом као унутрашњим слојем, и завесом од цилиндричних цеви као спољашњим слојем. Спољашње цеви су металне, цилиндричне, пречника 4цм, 6цм и 8цм, пластифициране у бело.
Полу-структурална зид завеса застакљена је провидним термоизолационим стаклом, осим у зони првог и другог спрата где је предвиђено млечно стакло како би спречио улазак природне светлости. На овим етажама, додатно је предвиђен и зид у боји иза стакла, са истом сврхом постизања музејских стандарда.
Примена полу-структуралне зид завесе омогућава чишћење и одржавање стаклене фасаде новог објекта.
У поплочању улазног и атријумског платоа предвиђене су камене плоче мањих димензија, у дизајну према пројекту. Неопходна је примена две боје плоча, или плоча у различитој завршној обради, како би се остварила визуелна повезаност дизајна поплочања хоризонталних површина са вертикалним цевима на фасади. Угао постављања линија у поплочању одговара правцу сенке коју објекат прави 1. априла у 11 часова, на дан оснивања Народног музеја у Нишу.
Материјализација поплочања улазног платоа, само без линијског дезена, предвиђена је и као поплочање улазног хола у приземљу музеја. На овај начин додатно се наглашава повезивање унутрашњег и спољашњег простора у објекту музеја.
Материјализација унутрашњих простора, посебно изложбених, је минималистичка како се не би одвлачила пажња од изложених предмета и дела. Унутрашњи подови су ливени, на бази епоксида, за лакше чишћење и одржавање. Унутрашње преграде су од гипс-картонских плоча и стакла, а спуштени плафони од гипс картонских плоча.










